Powierzchnia magazynowa 300m2 + opcjonalnie biura
Łysomice Pokaż na mapie ›
Odświeżone: Wtorek, 09 Grudzień, 2025 11:05
6 900 zł
Szczegóły ogłoszenia
- Kategoria: Biura i lokale / Do wynajęcia
- Cena: 6 900 zł
Opis oferty
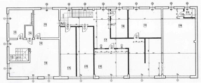
Przedmiotem najmu jest hala magazynowa. Łączna powierzchnia około 300m2.Możliwość wynajęcia dodatkowej powierzchni biurowej ok. 300m2 (rys. techniczny na jednym ze zdjęć) i dodatkowo 150m2 w zadaszonej wiacie na stelażu oraz powierzchni w kontenerach morskich znajdujących się na placu. Wystawiamy fakturę VAT.
Magazyn – jako jedna duża powierzchnia + toaleta. Magazyn posiada 3 profesjonalne bramy wjazdowe (rys. techniczny na ostatnim zdjęciu)
Podział biur (biura jako opcja dodatkowa)
100m2 nowoczesnych biur w bardzo wysokim standardzie – 3 osobne pomieszczenia, z czego 1 podzielone na 3 biura i oddzielone przeszklonymi ściankami – łącznie 5 osobnych biur + toaleta. Pozostałe - biura i magazyny podręczne do dowolnego zagospodarowania. Dokładny podział przedstawiamy na rysunku technicznym na jednym ze zdjęć (zdj. nr 7). Pomieszczenie o oznaczeniu 1.6 ma wspomniany podział przeszklonymi ściankami.
Wiata zadaszona – około 150m2 jednej łącznej powierzchni (możliwość dodatkowego podnajmu).
Budynki znajdują się na nowoczesnej działce w atrakcyjnej lokalizacji. Teren jest odgrodzony, monitorowany, z podłączonym alarmem. Na plac prowadzą 2 bramy wjazdowe.
Możliwość wynajęcia dodatkowej powierzchni w kontenerach morskich 30m2 każdy.
Sprawdź zainteresowanie tym ogłoszeniem
Wyświetlenia
Data dodania
Ostatnio widziany
Obserwujących
Wysłane zapytania
Odsłony telefonu
- Wypromuj ogłoszenie
- Zgłoś naruszenie
- Drukuj ulotkę
- Edytuj/usuń ogłoszenie
- Udostępnij ogłoszenie
- Dodaj na Facebook
















